設 計

お客様の理想の住まいをカタチにするお手伝いをさせていただきます

私たちが考えるリフォーム設計とは、単にお客様のご要望を形にするだけではありません。もちろん、お客様のライフスタイルや理想を丁寧にヒアリングし、建築士の専門知識と経験を活かして最適なプランをご提案することは大前提です。しかし、本当に価値ある設計は、その先にあると考えています。

例えば、「ここにこんな収納があったら便利なのに」「もう少し広々とした空間にならないかな」といった漠然としたイメージも、専門家でなければ具体的な解決策を見つけるのは難しいものです。私たちは、豊富な経験と実績に基づき、お客様自身も気づいていないような潜在的なニーズを引き出し、空間の可能性を最大限に引き出すお手伝いをさせていただきます。

また、動線や採光、通風といった機能面はもちろん、素材の選定やディテールの工夫一つで、住まいの快適性やデザイン性は大きく向上します。お客様の思い描く「理想の暮らし」を多角的な視点から深く掘り下げ、プロならではのアイデアと工夫をプラスすることで、期待を超える価値を提供できるよう努めています。

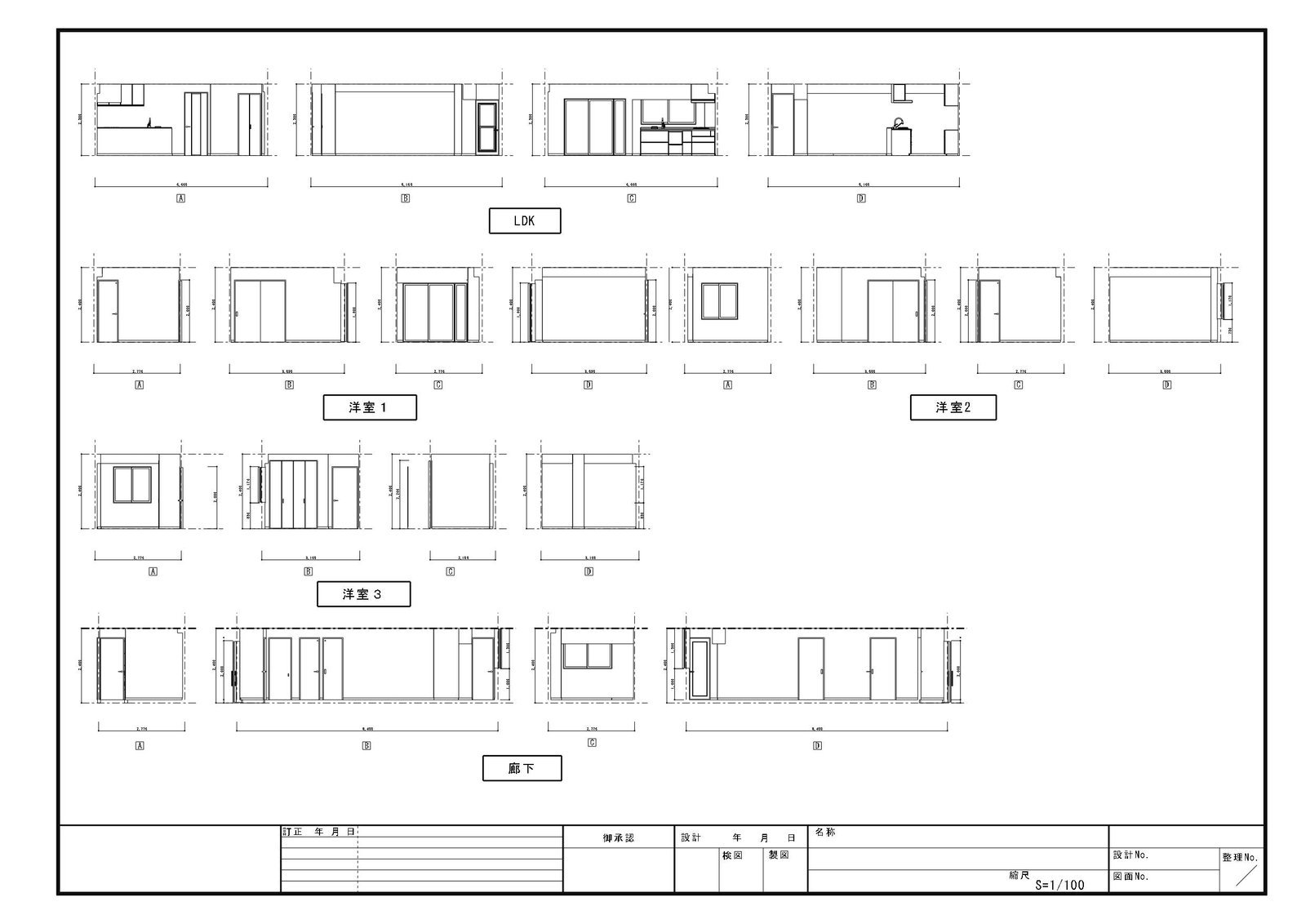
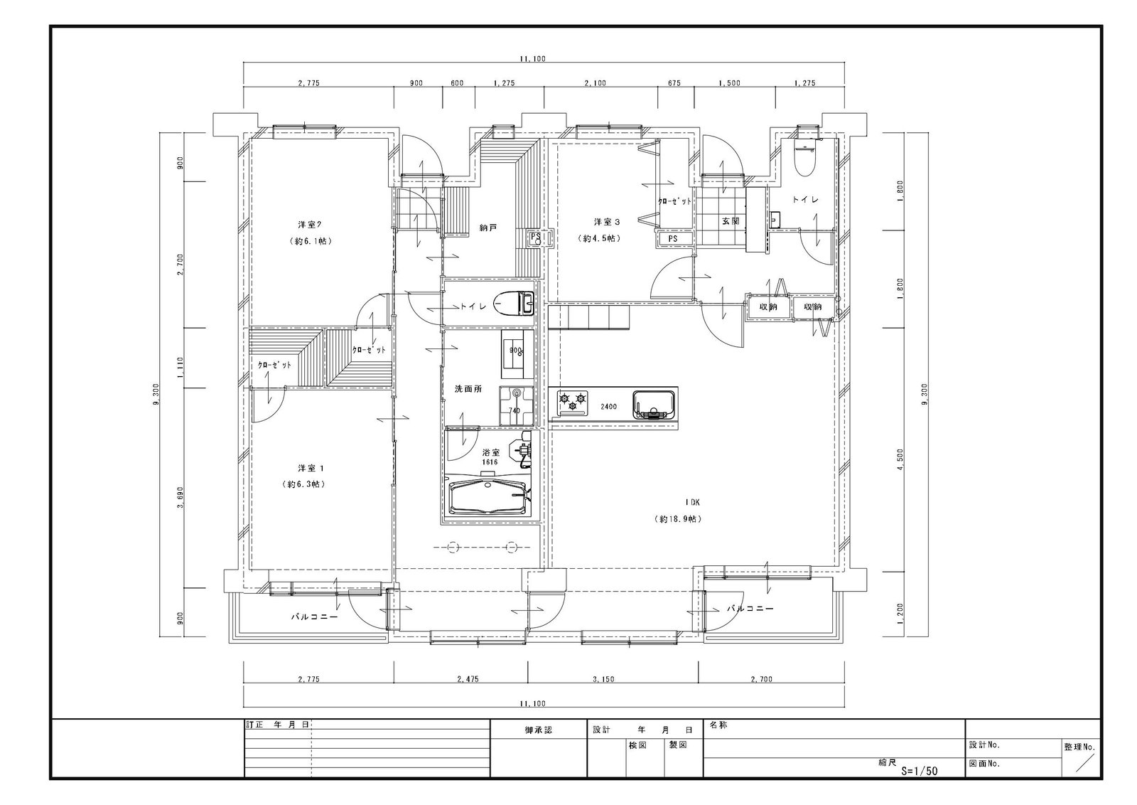
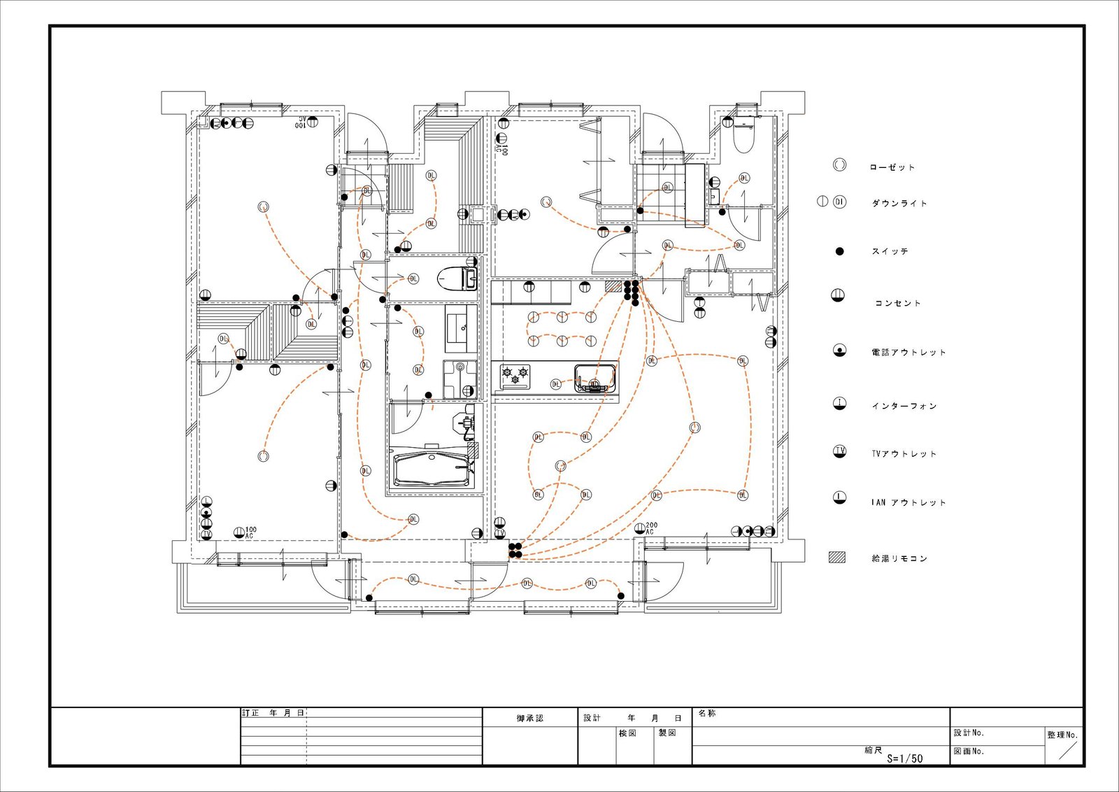
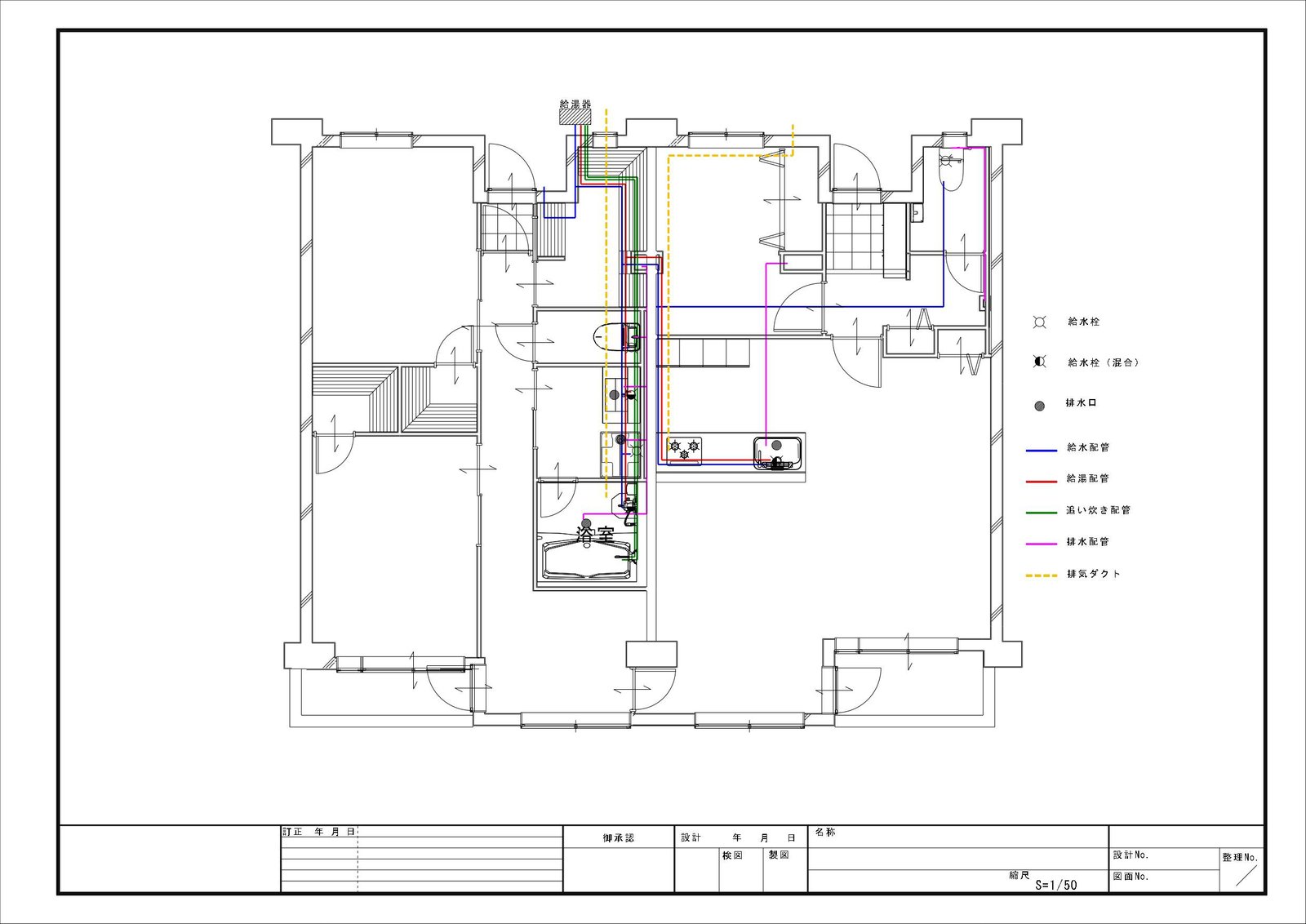
設計図面や仕様書で安心をサポート

詳細な設計図面と仕様書で、工事内容や使用素材を明確にし、お客様に心からご安心いただけるリフォームをお届けします。

素材のサンプルもご確認いただきます

3DCGパースで完成イメージを共有

CPRでは、必要に応じて3DCGパースを作成し、完成イメージを事前にご確認いただけるサービスを提供しています。

間取りや動線、インテリアデザイン、外観の質感や素材感までリアルに再現することで、お客様が完成後の空間を具体的にイメージできるようサポートします。これにより、図面だけでは伝わりにくい細部のデザインや仕上がりの雰囲気を事前に共有でき、完成後の「思っていたものと違う」といったギャップを最小限に抑えることが可能です。

さらに、設計段階でのイメージ共有がスムーズになることで、デザインの方向性や仕様変更の検討も迅速に行え、工期やコストの最適化にもつながります。お客様にとって納得感のある空間づくりを実現するために、視覚的なサポートを積極的に取り入れています。

VRで色合いや実際の日照イメージもご確認いただけます